NAVESALIA Naves en Alquiler en San Agustin de Guadalix y oficinas en Alquiler y Venta en Madrid capital english +34 916 508 937


 
Solicitar más información
   
Nombre:
Apellidos:
Email:
Telefono:
Comentario
 
NAVES:

 L1
 L2
 L3
 L4
 L5
 L6
 LL7
 LL8
 DL9
 DL10
 C1   C2   C3   C4
 Naves C
 H21
 D4-D5

OFICINAS:

 C/ Gral. Martinez Campos, 41
 C/ Maria de Molina, 37:
   1a planta
   2a planta
   8a planta
 C/ Bolivia, 13
 C/ Padre Xifre, 5

Naves LL7, LL8, DL9 y DL10

- Naves adosadas, con amplia calle de maniobra de trailers, modulares en distintas superficies desde 675 m2 hasta 3.384 m2.
- Estructura metálica recubierta de verniculita para aislamiento contra incendios.
- Cubierta sistema Villoar II Banco (Añuri, Pamplona) con techos de aluminio e insolada.
- Techos de 1,5m de aluminio con lucernarios.
- Altura libre de 6m + 1,5 m de diente de sierra con lucernarios.
- Muy diáfana con oficinas opcionales.
- Hasta 6 portones para carga y descargas con calle en fondo de saco.
- Instalaciones de luz, fuerza y adaptadas a la vigente normativa contra incendios.
- Suelos de hormigón reforzados.
- Conexión de agua con Canal de Isabel II.
- Fondo general de las naves 30m, excepto 22,5m en los retranqueos.
- Frente de cada módulo múltiplos de 7,5m excepto en las naves retranqueadas, que es mayor.
- Superficie Total de los 4 módulos construidos de 3.384m2 cada uno.


NAVES DISPONIBLES :

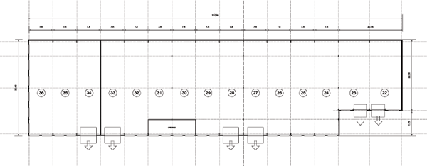
LL7

Superficies disponibles : modulos 7-9 (675 m2)   /   modulos 16-21 (1359m2)   /   modulos 7-12 (1350m2)   /   modulos 7-15 (2025m2)   /   modulos 7-21 (3384m2)   /   modulos 13-21 (2034m2)
 

LL8

En este momento no hay ninguna nave disponible en la LL8
 

DL9

En este momento no hay ninguna nave disponible en la DL9
 

DL10

Superficies disponibles : modulos 66-64 (720m2)   /   modulos 66-60 (1620m2)

Descargar planos de la nave LL7 en PDF
Descargar planos planos de la nave LL8 en PDF
Descargar planos planos de la nave DL9 en PDF
Descargar planos planos de la nave DL10 en PDF
Descargar planos de la oficina de la nave LL8 en PDF
Descargar planos de la oficina de la nave DL9 en PDF

Imprimir ficha nave LL7
Descargar ficha nave LL7 en PDF

Imprimir ficha nave DL10
Descargar ficha nave DL10 en PDF


 
Poligono Industrial Norte (El Raso) de San Agustin de Guadalix ,Accesos

VER MAPA DE SITUACION

© NAVESALIA S.L. CIF: B-82685405 Paseo de la Castellana, 54 - Planta 2. 28046 - MADRID. Todos los derechos reservados.